Текущи проекти

  1. София, община "Слатина", район "Подуене-Редута", ул. "Кутловица" №27
  2. Перник, кв. "Изток", на бул. "Юрий Гагарин" /на ъгъла срещу банята/
  3. Перник, ЦГЧ, ул. "Найчо Цанов" №12
  4. Перник, ЦГЧ, ул. "Райко Даскалов" №6,8
София, община "Слатина", район "Подуене-Редута", ул. "Кутловица" №27
Обща информация:
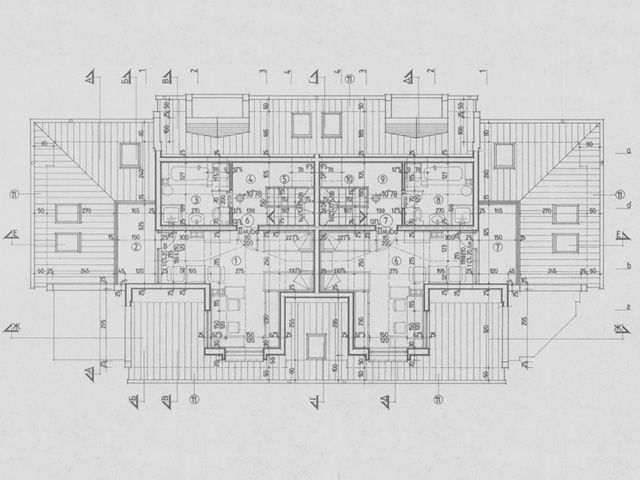
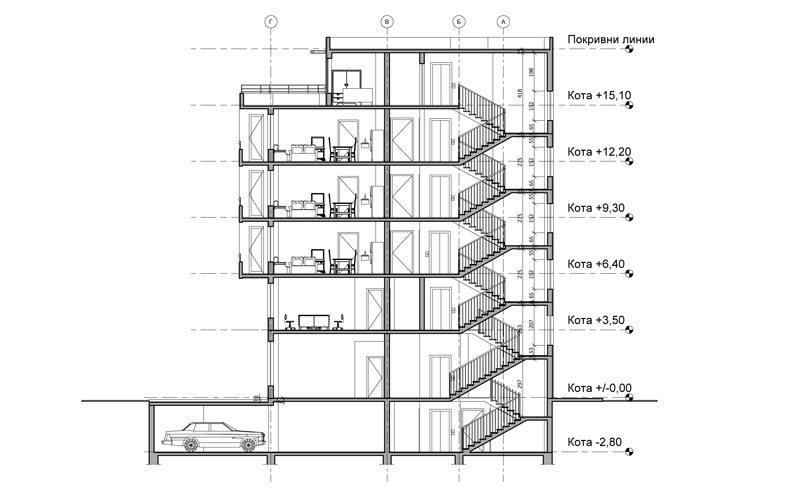
Жилищна сграда на три етажа и две подпокривни нива с общо осем апартамента, магазин и пет подземни паркоместа /гаражи/. Ново строителство на комуникативно място с изградена инфраструктура, близо до пазар и парк. Намира се на кръстовището на ул. "Кутлавица" и ул. "Кобилино бранище" на тиха улица, в спокоен район с ниско застрояване, но с директна връзка с бул. "Ситняково" и бул. "Мадрид", градски транспорт /автобусен, тролейбусен и трамваен/, жп връзка и автогара. Бърза връзка с центъра на София. До училище, детска градина, търговски площи и обекти от обслужващата сфера. Индивидуални схеми на плащане. Сградата е с предстоящ акт 15 и Разрешение за ползване средата на 2009 год.
Конструкция на сградата:
Строителна система – монолитна, червена тухла, ефективна външна топлоизолация и декоративна минерална мазилка "Baumit".
Степен на завършеност на апартаменти:
  • антре, коридор, кухня, дневна, трапезария, спални: под - циментова замазка, стени и тавани – машинна варогипсова мазилка;
  • санитарни помещения: под - циментова замазка, стени и таван – машинна вароциментова мазилка;
  • прозорци и балконски врати - PVC дограма – немска "Rehau";
  • тераси напълно завършени с гранитогрес;
  • вътрешни врати MDF.
Степен на завършеност на магазин:
  • помещение: под - циментова замазка, стени и тавани – машинна варогипсова мазилка;
  • санитарни помещения: под - циментова замазка, стени и таван – машинна вароциментова мазилка;
  • дограма външна - алуминиева;
  • вътрешни врати MDF.
Инсталации:
  • ВиК мрежи изпълнени от ПП тръби до тапа, отделни водомери;
  • електро - силнотокова - ел.табло и ел ключове, контакти по стените, осветителна инсталация - до фасунга;
  • слаботокова - извод за телефон, домофонна уредба, TV извод – антена.
Отопление:
Изградена отоплителна инсталация с алуминиеви радиатори – локално отопление, с възможност за самостоятелно регулиране на достъпа на топлинна енергия и отчитането й.
Гаражи подземни:
  • гаражна врата – монтирана; под – бетонова настилка.
Свободни площи:
  • апартаменти от 111 до 168 кв.м.;
  • магазин – 67 кв.м.;
  • подземни паркоместа.

Преференция за получаване на кредити срещу ипотека на купувания имот „в строеж” по рамково споразумение на „ВЕК-92” ООД с ОББ-АД с 20% самоучастие от пазарната цена.
Перник, кв. "Изток", на бул. "Юрий Гагарин" /на ъгъла срещу банята/
Обща информация:
Жилищна сграда на пет етажа с апартаменти, магазини, офиси, стоматологична лаборатория, стоматологичен кабинет и подземни паркоместа /гаражи/. Намира се в центъра на кв. "Изток" /срещу банята/ с пряк излаз с еднопосочно движение към пътен възел на новостроящата се магистрала "Люлин" и магистрала "Струма" към Кулата. В близост до сградата се намират училища – начални и средни, детски градини, търговски площи и обекти от обслужващата сфера, автобусни и жп връзки. градски транспорт /автобусен, тролейбусен/. Има асансьор и отделни входове за офисна и жилищна част. Индивидуални схеми на плащане. Сградата е започната септември 2008 год. и ще бъде въведена в експлоатация 2011 година.
Конструкция на сградата:
Строителна система – монолитна, червена тухла, ефективна външна топлоизолация и декоративна минерална мазилка. Има асансьор.
Степен на завършеност на апартаменти и офиси:
  • антре, коридор, кухня, дневна, трапезария, спални: под - циментова замазка, стени и тавани – машинна варогипсова мазилка;
  • санитарни помещения: под - циментова замазка, стени и таван – машинна вароциментова мазилка;
  • прозорци и балконски врати - PVC дограма;
  • тераси напълно завършени с гранитогрес;
  • вътрешни врати MDF.
Степен на завършеност на магазин:
  • помещение: под - циментова замазка, стени и тавани – машинна варогипсова мазилка;
  • санитарни помещения: под - циментова замазка, стени и таван – машинна вароциментова мазилка;
  • дограма външна - алуминиева;
  • вътрешни врати MDF.
Инсталации:
  • ВиК мрежи - изпълнени от ПП тръби до тапа, отделни водомери;
  • електро - силнотокова - ел.табло и ел ключове, контакти по стените, осветителна инсталация - до фасунга;
  • слаботокова - извод за телефон, домофонна уредба, TV извод – антена.
Отопление:
Изградена отоплителна инсталация с алуминиеви радиатори – с възможност за самостоятелно регулиране на достъпа на топлинна енергия и отчитането й.
Гаражи подземни:
  • гаражна врата – монтирана; под – бетонова настилка.
Свободни площи:
  • апартаменти – двустайни, тристайни и четиристайни;
  • магазини – на партерен /първи/ етаж;
  • офиси – на втори /надпартерен/ етаж;
  • подземни паркоместа.

Преференция за получаване на кредити срещу ипотека на купувания имот "в строеж" по рамково споразумение на "ВЕК-92" ООД с ОББ-АД с 20% самоучастие от пазарната цена. Без ограничения за избор на банка за кредитиране.
Перник, ЦГЧ, ул. "Найчо Цанов" №12
Обща информация:
Жилищна сграда с апартаменти, магазини, офиси и подземни паркоместа /гаражи/. Намира се в центъра на гр Перник, на тиха улица, с пряк излаз към новостроящата се магистрала "Люлин", магистрала „"Струма" към Кулата и пътя към Кюстендил. В близост до сградата се намират училища – начални и средни, детски градини, търговски площи и обекти от обслужващата сфера, автобусни и жп връзки. градски транспорт /автобусен, тролейбусен/. На пешеходно разстояние до всички общински и държавни институции на територията на гр. Перник и офиси на банки. Индивидуални схеми на плащане. Основната част от сградата има акт №14 за изградена конструкция и ще бъде въведена в експлоатация 2010 година.
Конструкция на сградата:
Строителна система – монолитна, червена тухла, ефективна външна топлоизолация и декоративна минерална мазилка. Има асансьор. Отделни входове за офиси и жилищна част.
Степен на завършеност на апартаменти и офиси:
  • антре, коридор, кухня, дневна, трапезария, спални: под - циментова замазка, стени и тавани – машинна варогипсова мазилка;
  • санитарни помещения: под - циментова замазка, стени и таван – машинна вароциментова мазилка;
  • прозорци и балконски врати - PVC дограма;
  • тераси напълно завършени с гранитогрес;
  • вътрешни врати MDF.
Степен на завършеност на магазин:
  • помещение: под - циментова замазка, стени и тавани – машинна варогипсова мазилка;
  • санитарни помещения: под - циментова замазка, стени и таван – машинна вароциментова мазилка;
  • дограма външна - алуминиева;
  • вътрешни врати MDF.
Инсталации:
  • ВиК мрежи - изпълнени от ПП тръби до тапа, отделни водомери;
  • електро - силнотокова - ел.табло и ел ключове, контакти по стените, осветителна инсталация - до фасунга;
  • слаботокова - извод за телефон, домофонна уредба, TV извод – антена.
Отопление:
Изградена отоплителна инсталация с алуминиеви радиатори – с възможност за самостоятелно регулиране на достъпа на топлинна енергия и отчитането й.
Гаражи подземни:
  • гаражна врата – монтирана; под – бетонова настилка.
Свободни площи:
  • апартаменти - двустайни и тристайни, с площ от 100 до 145 кв.м.;
  • магазин – на партерен /първи/ етаж;
  • подземни паркоместа.

Преференция за получаване на кредити срещу ипотека на купувания имот "в строеж" по рамково споразумение на "ВЕК-92" ООД с ОББ-АД с 20% самоучастие от пазарната цена. Без ограничения за избор на банка за кредитиране.
Перник, ЦГЧ, ул. "Райко Даскалов" №6,8
Обща информация:
Жилищна сграда с апартаменти, магазини, офиси и подземни паркоместа /гаражи/. Намира се в центъра на гр Перник, на ъгъла на ул. "Райко Даскалов" и ул. "Кракра", с пряк излаз към новостроящата се магистрала "Люлин", магистрала "Струма" към Кулата и пътя към Кюстендил. В близост до сградата се намират училища – начални и средни, детски градини, търговски площи и обекти от обслужващата сфера, автобусни и жп връзки. градски транспорт /автобусен, тролейбусен/. На пешеходно разстояние до всички общински и държавни институции на територията на гр. Перник и офиси на банки. Предстоящо подписване на Акт №15 и ще бъде въведена в експлоатация в средата на 2009 година.
Конструкция на сградата:
Строителна система – монолитна, червена тухла, ефективна външна топлоизолация и декоративна минерална мазилка. Има асансьор. Отделни входове за офиси и жилищна част.
Степен на завършеност на апартаменти и офиси:
  • антре, коридор, кухня, дневна, трапезария, спални: под - циментова замазка, стени и тавани – машинна варогипсова мазилка;
  • санитарни помещения: под - циментова замазка, стени и таван – машинна вароциментова мазилка;
  • прозорци и балконски врати - PVC дограма, немска "Salamander" – 5 камерна - монтирана;
  • тераси напълно завършени с гранитогрес;
  • вътрешни врати MDF.
Степен на завършеност на магазин:
  • помещение: под - циментова замазка, стени и тавани – машинна варогипсова мазилка;
  • санитарни помещения: под - циментова замазка, стени и таван – машинна вароциментова мазилка;
  • дограма външна - алуминиева;
  • вътрешни врати MDF.
Инсталации:
  • ВиК мрежи - изпълнени от ПП тръби до тапа, отделни водомери;
  • електро - силнотокова - ел.табло и ел ключове, контакти по стените, осветителна инсталация - до фасунга;
  • слаботокова - извод за телефон, домофонна уредба, TV извод – антена.
Отопление:
Изградена отоплителна инсталация с алуминиеви радиатори – с възможност за самостоятелно регулиране на достъпа на топлинна енергия и отчитането й.
Гаражи подземни:
  • гаражна врата – монтирана; под – бетонова настилка.
Свободни площи:
  • апартаменти - двустайни, с площ от 61 до 63 кв.м.;
  • магазин /стоматологичен кабинет/ – на партерен /първи/ етаж;
  • подземни паркоместа.

Индивидуални схеми на плащане.
Преференция за получаване на кредити срещу ипотека на купувания имот "в строеж" по рамково споразумение на „ВЕК-92” ООД с ОББ-АД с 20% самоучастие от пазарната цена. Без ограничения за избор на банка за кредитиране.
Мартин Методиев